襯氟球閥,襯氟塑料球閥,內襯四氟球閥,襯F46球閥具有耐腐蝕性能,由于受阻于壓力、和溫度的影響,不能廣泛的使用到各個腐蝕領域上,襯氟類的氟塑料包括有PO、F46、F4、PFA為常見的,襯氟閥門。
襯氟球閥概述:
襯氟球閥,襯氟球閥就是將通用的浮動球閥進行更改,使閥體的內壁、內件外部全都覆蓋上氟塑料,有介質接觸的地方都襯有氟塑料,從而達到耐腐蝕性能。
襯氟球閥適用范圍:
內腔及球體均采用高壓注塑工藝襯有耐腐蝕、耐老化的氟塑料,有可靠的耐腐蝕性和密封性。廣泛用于化工、石油、冶金、藥類等工業部門,實現對生產過程中酸、堿等強腐蝕介質的調節或切斷,在水處理過程控制中使用。
襯氟球閥基本型號
|
手動 |
Q41F4 |
蝸輪 |
Q341F4 |
|
Q41F46 |
Q341F46 |
|
氣動 |
Q641F4 |
電動 |
Q941F4 |
|
Q641F46 |
Q941F46 |
襯氟球閥技術規范
|
設計標準 |
GB12237 |
|
結構長度 |
GB12221 |
|
法蘭標準 |
JB/T79-94 |
|
GB9113.1-26 |
|
檢驗試驗 |
JB/T9092-99 |
|
驅動方式 |
手動、電動、氣動、蝸輪 |
襯氟球閥主要零部件材料表
|
序號 |
零件名稱 |
灰鑄鐵 |
鑄鋼 |
不銹耐酸鑄鋼 | 低碳不銹耐酸鑄鋼 |
|
Z |
C |
P8 |
R8 |
R3 |
R3 |
|
1 |
閥體/閥蓋 |
A216-C |
A216-WCB |
A351-CF8 |
A351-CF8M |
A351-CF3 |
A351-CF3M |
|
2 |
球體/閥桿 |
A216-WCB |
A351-CF8 |
A351-CF8M |
A351-CF3 |
A351-CF3M |
|
3 |
襯里/閥座 |
PTFE(F4)、PCTFE(F3)、FEP(F46)、PFA(可溶F4) |
|
4 |
填料/壓蓋 |
PTFE(F4) |
A351-CF3 |
A351-CF3 |
|
5 |
填料 |
A216-WCB |
A351-CF8 |
A351-CF8 |
|
6 |
支架 |
A193-B7 |
A194-8 |
A193-B8M |
|
7 |
緊固螺栓 |
A193-B7 |
A193-B8M |
A194-8 |
|
8 |
螺母 |
A194-2H |
A194-8 |
A194-8 |
|
9 |
操作手柄 |
A216-WCB |
A216-WCB |
A216-WCB |
1.0MPa主要外形和連接尺寸
|
公稱通經 |
L |
D |
D1 |
D2 |
f |
b |
Z-φd |
|
DN(mm) |
NPS(inch) |
PN1.0MPa |
|
15 |
1/2 |
130 |
95 |
65 |
45 |
2 |
14 |
4-φ14 |
|
20 |
3/4 |
140 |
105 |
75 |
55 |
2 |
16 |
4-φ14 |
|
25 |
1 |
150 |
115 |
85 |
65 |
2 |
16 |
4-φ14 |
|
32 |
5/4 |
165 |
135 |
100 |
78 |
2 |
18 |
4-φ18 |
|
40 |
3/2 |
180 |
145 |
110 |
85 |
3 |
18 |
4-φ18 |
|
50 |
2 |
200 |
160 |
125 |
100 |
3 |
20 |
4-φ18 |
|
65 |
5/2 |
220 |
180 |
145 |
120 |
3 |
20 |
4-φ18 |
|
80 |
3 |
250 |
195 |
160 |
135 |
3 |
22 |
4-φ18 |
|
100 |
4 |
280 |
215 |
180 |
155 |
3 |
22 |
8-φ18 |
|
125 |
5 |
320 |
245 |
210 |
185 |
3 |
24 |
8-φ18 |
|
150 |
6 |
360 |
280 |
240 |
210 |
3 |
24 |
8-φ23 |
|
200 |
8 |
457 |
335 |
295 |
265 |
3 |
26 |
8-φ23 |
|
250 |
10 |
533 |
390 |
350 |
320 |
3 |
28 |
12-φ23 |
1.6MPa主要外形和連接尺寸
|
公稱通經 |
L |
D |
D1 |
D2 |
f |
b |
Z-φd |
|
DN(mm) |
NPS(inch) |
PN1.0MPa |
|
15 |
1/2 |
130 |
95 |
65 |
45 |
2 |
14 |
4-φ14 |
|
20 |
3/4 |
130 |
105 |
75 |
55 |
2 |
16 |
4-φ14 |
|
25 |
1 |
140 |
115 |
85 |
65 |
2 |
16 |
4-φ14 |
|
32 |
5/4 |
165 |
135 |
100 |
78 |
2 |
18 |
4-φ18 |
|
40 |
3/2 |
165 |
145 |
110 |
85 |
3 |
18 |
4-φ18 |
|
50 |
2 |
203 |
160 |
125 |
100 |
3 |
20 |
4-φ18 |
|
65 |
5/2 |
222 |
180 |
145 |
120 |
3 |
20 |
4-φ18 |
|
80 |
3 |
241 |
195 |
160 |
135 |
3 |
22 |
8-φ18 |
|
100 |
4 |
305 |
215 |
180 |
155 |
3 |
24 |
8-φ18 |
|
125 |
5 |
356 |
245 |
210 |
185 |
3 |
26 |
8-φ18 |
|
150 |
6 |
394 |
280 |
240 |
210 |
3 |
28 |
8-φ23 |
|
200 |
8 |
457 |
335 |
295 |
265 |
3 |
30 |
12-φ23 |
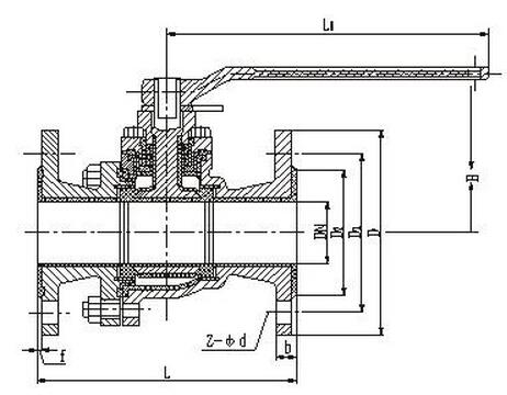
【襯氟球閥結構圖片】

為您提供Q41F46襯氟球閥結構圖,本結構圖希望對您有所幫助。
1、Q41F46襯氟球閥結構設計的主要依據國家相關標準規定設計。
2、Q41F46襯氟球閥所采用的通用做法和標準構件圖集。
3、如有特殊Q41F46襯氟球閥構件需作結構性能檢驗時,應指出檢驗的方法與要求。
4、Q41F46襯氟球閥主要根據剖面、長度、高度、外形等作出說明。
5、Q41F46襯氟球閥所選用結構材料的品種、規格、性能及相應的產品標準。
【襯氟球閥實物圖】
電動襯氟球閥實物圖
【結構總結】
Q41F46襯氟球閥結構主要是給安裝單位提供具有好的了解該Q41F46襯氟球閥的外形結構、使用時考慮到工況、環境等因數在應用中有著更合理的計劃規范,不會在安裝時產生空間使用不合理等常見問題。
襯氟球閥_(襯氟塑料,內襯四氟,襯F46)球閥尺寸圖:
售后服務承諾
對于貴公司在雄工閥門訂購閥門產品,我司在售后服務方面作如下承諾:
一、我公司對產品質量實行三包,即:包質、包換、保修;
二、合同簽訂后,保證保質、保量,按時交貨;
三、本公司確保所提供閥門產品達到合同指標
四、對于需方的技術咨詢,隨時給予解答;
當接到用戶反應質量問題的信函或電話后,保證24小時內作出答復解決問題。
訂貨流程
- 客戶采購清單請傳真至 021-60714833,或來電咨詢 021-31263381。
- 收到客戶采購清單,為客戶提供閥門型號選型與報價(價格清單)。
- 具體商定:交貨期、特殊要求等事宜。
訂貨須知
- 客戶對產品有特殊要求,須在訂貨合同中提供以下說明:
- 結構長度
- 連接形式
- 公稱直徑、全通徑、縮徑、管道尺寸
- 運用介質及溫度、壓力范圍
- 實驗、檢驗標準及其他要求
- 本場可根據客戶特殊要求配置各類驅動裝置。
- 如由客戶提供確定的閥門類型和型號時,客戶應正確說明其型號的含義和要求,在供需雙方理解一致的條件下簽訂合同。
服務承諾
專業制造、專業服務,雄工為你創造更多價值
不斷提升服務質量,精益求精,“真誠的服務”是雄工永恒的主題。雄工嚴格按照 ISO9001-2000 質量體系認證要求,質量嚴格把關,責任到人,確保生產、銷售、服務的健康運行。加強與用戶溝通,竭誠為廣大客戶提供優質產品,至善至美服務,特此我廠做出如下承諾:
產品標準
產品嚴格按照中國 GB、HG 標準和美國 API 等標準設計、制造、驗收。密封面硬度達到國家規定要求,寬度超過國家標準。
售前服務
產品介紹,技術交流,非標產品設計,疑難解答
售中服務
- 守信合同,保證及時供貨,隨時保持與客戶聯系
- 對特殊或復雜的產品,我廠安排技術人員對用戶進行產品使用、故障排除、調式及維修進行培訓和指導。
售后服務
- 雄工產品質保期為自出廠起 12 個月,實行“三包”服務(包退、包換、包修)。
- 產品在使用中我廠定期組織技術、檢查人員進行訪問,征詢用戶對產品質量、使用狀況、改進意見等方面的反饋,以便進一步提高產品質量。
- 對用戶投訴產品質量問題,快速做出反映,售后服務人員在 24-36 小時(省外 48 小時)趕赴現場。
- 對售后服務,要求用戶填寫服務后的質量反饋表,并做出鑒定意見,一邊提高雄工的服務質量