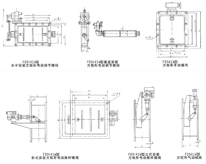
FD941W電動矩形百葉式調節蝶閥概述:
我廠生產的通風蝶閥采用鋼板焊接制成,有結構尺寸短,重量輕,安裝方便等特點。該閥驅動力矩小,啟閉靈活,操作方便。閥體上設置油密封擋圈,密封副之間無可見間隙,泄漏率小。蝶板與閥體間的膨脹間隙大,能有效防止因熱漲冷縮造成的卡死現象。本閥可配備多種驅動裝置,如手動裝置、蝸輪傳動裝置、氣動裝置、電動裝置。通風蝶閥廣泛用于治金、師化、電力、建材、礦山等工業管線,對介質氣體氣控制或調節作用。
FD941W電動矩形百葉式調節蝶閥產品用途和特點:
電動百葉式蝶閥配置電動執行機構廣泛應用于建材、治金、礦山、電力等生產過程,能自動控制或手動控制調節管路中介質流量。蝶板采用百葉多軸體結構,液體均勻,啟閉力矩小,動作靈敏,性能可靠。
FD941W電動矩形百葉式調節蝶閥主要技術參數:
公稱壓力PN
| 0.05MPa
| 泄漏率
| ≤3%
|
適用溫度
| -30℃~350℃
| 介質流量
| ≤25m/s
|
適用介質
| 粉塵、含塵氣體
|
|
|
FD941W電動矩形百葉式調節蝶閥主要外形連接尺寸:
A×B
| A1×B1
| A2×B2
| L
| L1
| H1
| H
| b
| Z-Фd
| X
| Y
|
320×180
| 375×105
| 400×240
| 180
| 245
| 580
| 735
| 8
| 16-14
| 5
| 3
|
320×250
| 375×395
| 400×330
| 180
| 245
| 625
| 825
| 8
| 16-14
| 5
| 3
|
400×200
| 455×255
| 500×330
| 200
| 245
| 610
| 805
| 8
| 16-18
| 5
| 3
|
400×320
| 455×375
| 500×420
| 200
| 245
| 870
| 915
| 8
| 16-18
| 5
| 3
|
500×200
| 555×255
| 600×300
| 220
| 245
| 610
| 805
| 8
| 16-18
| 5
| 3
|
500×400
| 555×455
| 600×500
| 220
| 245
| 370
| 915
| 8
| 20-18
| 5
| 5
|
630×320
| 685×375
| 730×420
| 220
| 245
| 610
| 805
| 10
| 20-18
| 7
| 3
|
630×400
| 685×455
| 730×500
| 220
| 245
| 710
| 995
| 10
| 24-18
| 7
| 5
|
800×400
| 855×455
| 900×500
| 240
| 300
| 670
| 945
| 10
| 24-18
| 7
| 5
|
800×630
| 855×685
| 900×730
| 240
| 300
| 710
| 995
| 10
| 28-18
| 7
| 7
|
1000×500
| 1070×570
| 1130×830
| 260
| 300
| 790
| 1075
| 10
| 24-23
| 7
| 5
|
1000×800
| 1070×870
| 1130×930
| 260
| 300
| 905
| 1270
| 10
| 28-23
| 7
| 7
|
1250×630
| 1320×700
| 1380×760
| 280
| 300
| 1005
| 1505
| 10
| 32-23
| 9
| 7
|
1250×1000
| 1320×1070
| 1380×1130
| 280
| 300
| 1105
| 1705
| 10
| 32-23
| 9
| 7
|
1400×800
| 1470×870
| 1530×930
| 300
| 385
| 1075
| 1575
| 10
| 36-23
| 11
| 7
|
1400×1250
| 1470×1320
| 1530×1380
| 300
| 385
| 1300
| 2025
| 10
| 40-23
| 11
| 9
|
1600×1000
| 1670×1070
| 1730×1130
| 320
| 385
| 1175
| 1775
| 10
| 36-23
| 11
| 7
|
1600×1250
| 1670×1320
| 1730×1380
| 320
| 385
| 1300
| 2025
| 10
| 40-23
| 11
| 9
|
1800×1250
| 1870×1320
| 1930×1380
| 340
| 420
| 1450
| 2175
| 10
| 44-23
| 13
| 9
|
1800×1400
| 1870×1470
| 1930×1530
| 340
| 420
| 1525
| 2325
| 10
| 48-23
| 13
| 11
|
2000×1250
| 2070×1320
| 2130×1380
| 360
| 420
| 1450
| 2175
| 10
| 48-23
| 15
| 9
|
2000×1800
| 2070×1670
| 2130×1730
| 360
| 420
| 1620
| 2520
| 12
| 52-23
| 15
| 11
|
2500×1800
| 2570×1870
| 2630×1730
| 420
| 450
| 1695
| 2595
| 12
| 56-23
| 17
| 11
|
2500×2000
| 2570×2070
| 2630×2130
| 420
| 450
| 1895
| 2995
| 12
| 64-23
| 17
| 15
|
2800×2500
| 2870×2570
| 2930×2630
| 440
| 450
| 2145
| 3195
| 12
| 72-23
| 19
| 17
|
3200×2800
| 3270×2870
| 3330×2930
| 480
| 480
| 2325
| 3825
| 12
| 80-23
| 21
| 19
|
3600×3200
| 3670×3270
| 3730×3330
| 520
| 480
| 2525
| 4225
| 12
| 88-23
| 23
| 21
|
售后服務承諾
對于貴公司在雄工閥門訂購閥門產品,我司在售后服務方面作如下承諾:
一、我公司對產品質量實行三包,即:包質、包換、保修;
二、合同簽訂后,保證保質、保量,按時交貨;
三、本公司確保所提供閥門產品達到合同指標
四、對于需方的技術咨詢,隨時給予解答;
當接到用戶反應質量問題的信函或電話后,保證24小時內作出答復解決問題。
訂貨流程
- 客戶采購清單請傳真至 021-60714833,或來電咨詢 021-31263381。
- 收到客戶采購清單,為客戶提供閥門型號選型與報價(價格清單)。
- 具體商定:交貨期、特殊要求等事宜。
訂貨須知
- 客戶對產品有特殊要求,須在訂貨合同中提供以下說明:
- 結構長度
- 連接形式
- 公稱直徑、全通徑、縮徑、管道尺寸
- 運用介質及溫度、壓力范圍
- 實驗、檢驗標準及其他要求
- 本場可根據客戶特殊要求配置各類驅動裝置。
- 如由客戶提供確定的閥門類型和型號時,客戶應正確說明其型號的含義和要求,在供需雙方理解一致的條件下簽訂合同。
服務承諾
專業制造、專業服務,雄工為你創造更多價值
不斷提升服務質量,精益求精,“真誠的服務”是雄工永恒的主題。雄工嚴格按照 ISO9001-2000 質量體系認證要求,質量嚴格把關,責任到人,確保生產、銷售、服務的健康運行。加強與用戶溝通,竭誠為廣大客戶提供優質產品,至善至美服務,特此我廠做出如下承諾:
產品標準
產品嚴格按照中國 GB、HG 標準和美國 API 等標準設計、制造、驗收。密封面硬度達到國家規定要求,寬度超過國家標準。
售前服務
產品介紹,技術交流,非標產品設計,疑難解答
售中服務
- 守信合同,保證及時供貨,隨時保持與客戶聯系
- 對特殊或復雜的產品,我廠安排技術人員對用戶進行產品使用、故障排除、調式及維修進行培訓和指導。
售后服務
- 雄工產品質保期為自出廠起 12 個月,實行“三包”服務(包退、包換、包修)。
- 產品在使用中我廠定期組織技術、檢查人員進行訪問,征詢用戶對產品質量、使用狀況、改進意見等方面的反饋,以便進一步提高產品質量。
- 對用戶投訴產品質量問題,快速做出反映,售后服務人員在 24-36 小時(省外 48 小時)趕赴現場。
- 對售后服務,要求用戶填寫服務后的質量反饋表,并做出鑒定意見,一邊提高雄工的服務質量