
法蘭閘閥產品概述:
Z41H法蘭閘閥適用介質:水、氣、油品、天然氣和酸堿腐蝕性介質;
公稱通徑:DN15到800 ,1/2"~24";
驅動方式:手動,齒輪,氣動,電動等;
閥門材質:鑄鋼,不銹鋼等。
適用溫度:不銹鋼閥門≤180℃,鑄鋼輕型≤200℃,鑄鋼重型≤425℃;((具體溫度范圍視密封材料和介質性質而定)
法蘭閘閥標準與規范:
設計制造閥門標準:GB/T12234-89
結構長度標準:GB/T12221-89
檢查與試驗標準:JB/T9092-99 GB/T13927-92
連接法蘭標準:JB79-94 ,GB/T9113-2000
1、法蘭閘閥選材,符合相關標準,材料的質量。
2、符合標準的要求,密封可靠、性能優良、結構緊湊、設計合理、閥門剛性好、通道流暢、流阻系數小、造型美觀。
3、采用柔性石墨填料、密封可靠,操作輕便靈活。
4、密封副配對合理,閘板和閥座的密封面采用不同硬度的司太立(Stellite)鈷基硬質合金堆焊而成,密封可靠、硬度高、耐磨、耐高溫、耐腐蝕、抗擦傷性能好、壽命長。
5、閥桿經調質及表面氮化處理,有好的抗腐蝕性、抗擦傷性和耐磨性。
6、采用楔式彈性閘板結構,中大口徑設置推力軸承,磨擦力小,并配有撞擊手輪,啟閉輕松自如。結構型式:彈性楔式單閘板、剛性楔式單閘板型式。
7、可采用各種配管法蘭標準及法蘭密封面形式,滿足各種工程需要及用戶要求。
法蘭閘閥執行標準 Administer Standard
設計與制造 Design and Manufacture |
結構長度 Face To Face |
法蘭尺寸 Flange Dimension |
壓力-溫度 Pressure Temperature Lating |
試驗-檢驗 spection And Test |
GB122234 |
GB12221 |
GB9113 JB79 |
GB9131 |
GB/T13927 JB/T9092 |
法蘭閘閥壓力試驗 Pressure Test
公稱壓力 NominalPressure |
1.6 |
2.5 |
4.0 |
6.4 |
10.0 |
16.0 |
強度試驗 Shell Test |
2.4 |
3.8 |
6.0 |
9.6 |
15.0 |
24.0 |
水密封試驗 Water Seal Test |
1.8 |
2.8 |
4.4 |
7.0 |
11.0 |
18.0 |
上密封試驗 Backseat Test |
1.8 |
2.8 |
4.4 |
7.0 |
11.0 |
18.0 |
氣密封試驗 Air Seal Test |
0.4-0.7 |
法蘭閘閥主要零件材料及性能 Main Part Materials and Property
體、蓋、板 Body Cover Disc |
閥桿 Stem |
密封面 Sealing Face |
墊片 Sealing Shim |
填料 Packing |
工作溫度 Working Temperature |
適用介質 Suitable Medium |
|
WCB |
2Cr13 |
13Cr
STL
木體材料
With Body
Material
尼龍
Nylon |
增強柔性石墨
13Cr/柔性石墨
Enhanced Flexible Graphite
1Cr13/Flexible Graphite
08軟鋼
08 Soft Steal
0Cr18Ni9Ti
0Cr17Ni12Mo2Ti
XD550F(T)
PTFE |
柔性石墨
增強柔性石墨
Flexible Graphite
Enhanced Flexible Graphite
SFB/260
SFP/260
PTFE |
≤425 |
水 蒸汽 油品
Water
Steam
Oil Goods |
|
WC1 |
38CrMoAl
25Cr2MoV |
≤450 |
|
WC6 |
≤540 |
|
WC9 |
≤570 |
|
C5 C12 |
≤540 |
|
ZGCr5Mo |
≤200 |
酸類 Nitric acid |
|
ZG1Cr18Ni9Ti |
1Cr18Ni9Ti |
|
≤200 |
醋酸類 Acetic acid |
|
ZG1Cr18Ni12Mo2Ti |
1Cr18Ni12Mo2Ti |
|
法蘭閘閥規格 主要尺寸和重量 Size Main Dimensions and Weight
1.6MPa |
DN |
L |
D |
D1 |
D2 |
b |
n-φd |
H |
D0 |
重量Weight |
凸面法蘭 RF
Z40H Z40Y Z40W Z40F Z40N
Z41H Z41Y Z41W Z41F Z41N
16C 16P 16R 16I |
15 |
130 |
95 |
65 |
45 |
14 |
4-14 |
170 |
120 |
5 |
20 |
150 |
105 |
75 |
55 |
14 |
4-14 |
190 |
140 |
6.5 |
25 |
160 |
115 |
85 |
65 |
14 |
4-14 |
205 |
160 |
9 |
32 |
180 |
135 |
100 |
78 |
16 |
4-18 |
270 |
180 |
12 |
40 |
200 |
145 |
110 |
85 |
16 |
4-18 |
310 |
200 |
36.5 |
50 |
250 |
160 |
125 |
100 |
16 |
4-18 |
358 |
240 |
29 |
65 |
260 |
180 |
145 |
120 |
18 |
4-18 |
373 |
240 |
33 |
80 |
280 |
195 |
160 |
135 |
20 |
8-18 |
435 |
280 |
45 |
100 |
300 |
215 |
180 |
155 |
20 |
8-18 |
500 |
300 |
63 |
125 |
325 |
245 |
210 |
185 |
22 |
8-18 |
614 |
320 |
108 |
150 |
350 |
280 |
240 |
210 |
24 |
8-23 |
674 |
360 |
134 |
200 |
400 |
335 |
295 |
265 |
26 |
12-23 |
818 |
400 |
192 |
250 |
450 |
405 |
355 |
320 |
30 |
12-25 |
969 |
450 |
273 |
300 |
500 |
460 |
410 |
375 |
30 |
12-25 |
1145 |
560 |
379 |
350 |
550 |
520 |
470 |
435 |
34 |
16-25 |
1280 |
640 |
590 |
400 |
600 |
580 |
525 |
485 |
36 |
16-30 |
1452 |
640 |
850 |
450 |
650 |
640 |
585 |
545 |
40 |
20-30 |
1541 |
720 |
907 |
500 |
700 |
705 |
650 |
608 |
44 |
20-34 |
1676 |
720 |
985 |
600 |
800 |
840 |
770 |
718 |
48 |
20-41 |
1874 |
800 |
1112 |
700 |
900 |
910 |
840 |
788 |
50 |
24-41 |
2083 |
800 |
- |
800 |
1000 |
1020 |
950 |
898 |
52 |
24-41 |
2400 |
950 |
- |
900 |
1100 |
1120 |
1050 |
998 |
54 |
28-41 |
2950 |
1000 |
- |
1000 |
1200 |
1255 |
1170 |
1110 |
56 |
28-48 |
3245 |
1000 |
- |
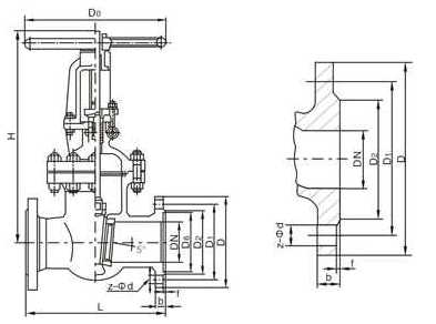
法蘭閘閥尺寸結構圖:
售后服務承諾
對于貴公司在雄工閥門訂購閥門產品,我司在售后服務方面作如下承諾:
一、我公司對產品質量實行三包,即:包質、包換、保修;
二、合同簽訂后,保證保質、保量,按時交貨;
三、本公司確保所提供閥門產品達到合同指標
四、對于需方的技術咨詢,隨時給予解答;
當接到用戶反應質量問題的信函或電話后,保證24小時內作出答復.解決問題。
訂貨流程
- 客戶采購清單請傳真至 021-60714833,或來電咨詢 021-31263381。
- 收到客戶采購清單,為客戶提供閥門型號選型與報價(價格清單)。
- 具體商定:交貨期、特殊要求等事宜。
訂貨須知
- 客戶對產品有特殊要求,須在訂貨合同中提供以下說明:
- 結構長度
- 連接形式
- 公稱直徑、全通徑、縮徑、管道尺寸
- 運用介質及溫度、壓力范圍
- 實驗、檢驗標準及其他要求
- 本場可根據客戶特殊要求配置各類驅動裝置。
- 如由客戶提供確定的閥門類型和型號時,客戶應正確說明其型號的含義和要求,在供需雙方理解一致的條件下簽訂合同。
服務承諾
專業制造、專業服務,雄工為你創造更多價值
不斷提升服務質量,精益求精,“真誠的服務”是雄工永恒的主題。雄工嚴格按照 ISO9001-2000 質量體系認證要求,質量嚴格把關,責任到人,確保生產、銷售、服務的健康運行。加強與用戶溝通,竭誠為廣大客戶提供優質產品,至善至美服務,特此我廠做出如下承諾:
產品標準
產品嚴格按照中國 GB、HG 標準和美國 API 等標準設計、制造、驗收。密封面硬度達到國家規定要求,寬度超過國家標準。
售前服務
產品介紹,技術交流,非標產品設計,疑難解答
售中服務
- 守信合同,保證及時供貨,隨時保持與客戶聯系
- 對特殊或復雜的產品,我廠安排技術人員對用戶進行產品使用、故障排除、調式及維修進行培訓和指導。
售后服務
- 雄工產品質保期為自出廠起 12 個月,實行“三包”服務(包退、包換、包修)。
- 產品在使用中我廠定期組織技術、檢查人員進行訪問,征詢用戶對產品質量、使用狀況、改進意見等方面的反饋,以便進一步提高產品質量。
- 對用戶投訴產品質量問題,快速做出反映,售后服務人員在 24-36 小時(省外 48 小時)趕赴現場。
- 對售后服務,要求用戶填寫服務后的質量反饋表,并做出鑒定意見,一邊提高雄工的服務質量